21.11.2025
Besichtigung Neubau Kantonsschule Ausserschwyz
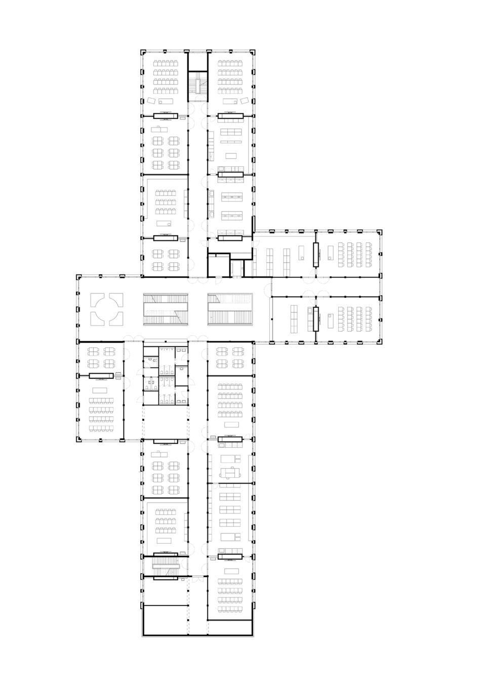
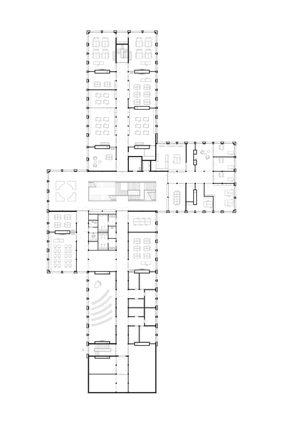
Mit dem Neubau der Kantonsschule Ausserschwyz von Adrian Streich Architekten ist der Bildungscampus Pfäffikon komplett. Der markante Holz-Beton-Hybridbau setzt am östlichen Ortsrand ein klares Zeichen und überzeugt mit seiner offenen Struktur, der ehrlichen Materialität und hellen, einladenden Räumen. Sichtbeton, Backstein und Holz verleihen dem Gebäude eine kraftvolle, zugleich leichte Atmosphäre. Gemeinsam mit dem Hallenbau entsteht ein stimmiges Ensemble, das den Campus prägt.
Wir freuen uns auf viele Mitglieder, die uns bei der Besichtigung dieses spannenden Projekts begleiten!
Bilder: Adrian Streich Architekten AG
Treffpunkt
Datum: 21.11.2025
Ort: Schützenstrasse 3, 8808 Pfäffikon
Startzeit: 16:00




